
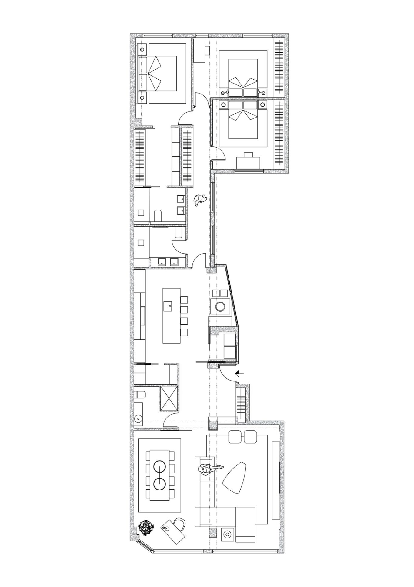
Spaces in this apartment were completely unproductive. A long corridor communicated day and night zones and rooms were small. The same was also happening in the living room communicating with an Italian-style bedroom.
Distribution:
According to the necessities of a 4 members family.
Objective:
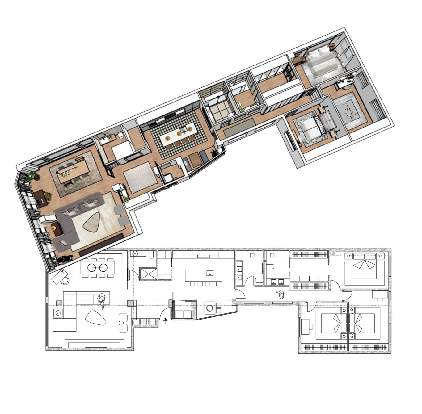
Achieve more storage service as well as broadening and lighting of spaces.
With the new distribution the kitchen is the joining point with the rest of the zones in the apartment, the meeting point between the day and night zones.
An spacious entrance hall joins living room and kitchen. In It the sliding doors, once opened, transform the space into a single space. The huge living room window fills with light the hall.
The new bedrooms add spacious built-in closets, king-size beds and study zones. The main bedroom has a wide dressing room and bathroom.
Another bathroom, one restroom and two spacious built-in closets complete the new apartment distribution.






